Description
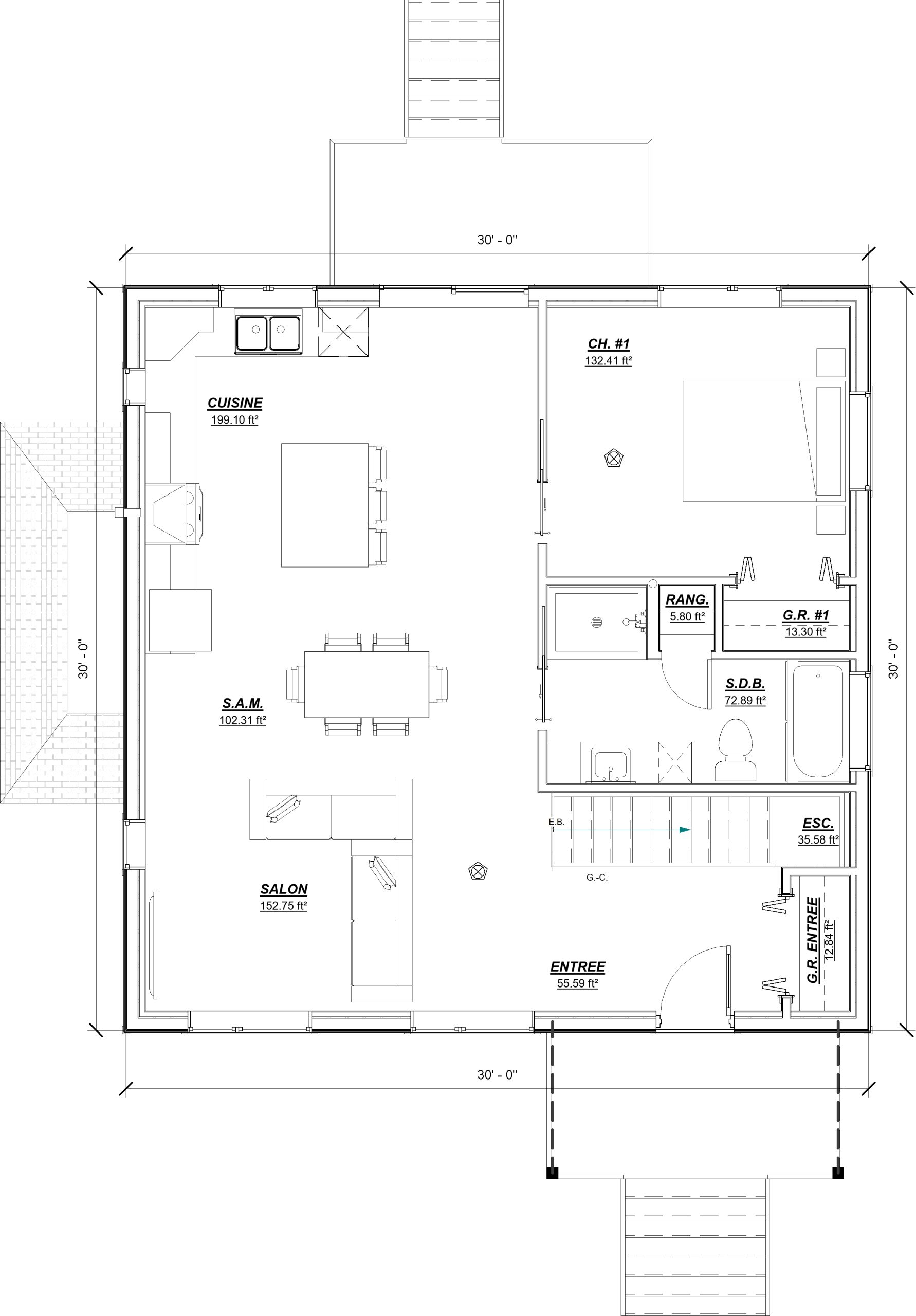
Le Modèle M-028 se distingue par son architecture équilibrée et son design intérieur intelligent. Cette résidence de 30′ x 30′ offre une expérience de vie fluide grâce à son rez-de-chaussée à aire ouverte regroupant un salon lumineux, une salle à manger centrale et une cuisine fonctionnelle avec un grand îlot.
Points forts du projet :
Design Extérieur : Un mélange élégant de brique classique et de revêtement de bois vertical pour un look résolument urbain.
Confort : Une suite principale complète au rez-de-chaussée avec salle de bain attenante et walk-in (G.R.).
Polyvalence : Un sous-sol totalement aménagé comprenant une salle de séjour chaleureuse et un vaste atelier de plus de 350 pi², parfait pour les bricoleurs ou les travailleurs à domicile.
Entrée pratique : Une zone d’accueil dégagée avec garde-robe d’entrée dédiée.





